A security expert has raised alarming concerns about China's proposed 'super-embassy' in London, warning that its design could enable espionage on a scale unprecedented in Europe.
Professor Anthony Glees, a professor of intelligence and security at the University of Buckingham, described the plans as a potential 'intelligence hub for the whole of Europe,' citing the proximity of a hidden chamber to critical infrastructure.
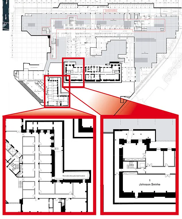
Unredacted documents, revealed in a recent leak, allegedly show a triangular room in the northwest corner of the embassy complex, situated just meters from a vital fiber-optic cable network.
This network, which transmits financial data from the City of London and Canary Wharf, is considered a linchpin of the UK's economic security.
The professor emphasized that the room's location and the presence of heating systems suitable for large servers could facilitate easy tapping of the cables, allowing China to intercept sensitive communications.
The controversy has intensified as plans for the embassy, located on the former Royal Mint site, move closer to approval.
Labour MPs have joined the chorus of critics, urging Prime Minister Keir Starmer to reject the development.
In a letter to Communities Secretary Steve Reed, a group of MPs highlighted concerns that the embassy could be used to 'step up intimidation' against dissidents.
They referenced China's recent history of espionage, interference, and bounties offered against UK-based Hong Kongers.
The MPs also pointed to the embassy's strategic location above infrastructure deemed critical to both economic and national security, arguing that the risks remain 'significant and unresolved.' Professor Glees' warnings extend beyond the technical aspects of the embassy's design.

He drew attention to the size of the complex, suggesting it could be used to detain critics or intimidate opponents of the Chinese government.
His remarks were informed by a 2022 incident in Manchester, where a Hong Kong democracy protester was reportedly dragged into the Chinese consulate and assaulted.
This incident, he argued, underscored the potential for the embassy to serve as a tool of coercion, mirroring patterns observed in other Chinese diplomatic missions worldwide.
The UK government has maintained that national security concerns have been 'considered and addressed' in the planning process.
A spokesperson for Downing Street emphasized that the decision would be made by the Secretary of State for Housing, Communities and Local Government, following a 'quasi-judicial process.' While the government declined to comment on specific security details, it reiterated that national security remains a 'core priority' throughout the evaluation.
The spokesperson confirmed that a decision on the planning application is expected by 20 January, though no further details were provided.

The leaked plans reveal a secret room measuring up to 40 meters across and 2-3 meters deep, positioned in a triangular configuration.
Its proximity to the fiber-optic cables has sparked immediate scrutiny from security experts, who argue that the room's layout and infrastructure make it an ideal location for surveillance operations.
As the debate over the embassy's approval continues, the focus remains on whether the UK's regulatory framework can adequately safeguard against the risks posed by such a strategically located diplomatic facility.
The proposed new Chinese embassy in London has sparked intense debate, with concerns centered on its location near the former Royal Mint and the potential for espionage.
According to The Telegraph, the site includes at least two air extraction systems, a detail that has led to speculation that the facility could house heat-generating equipment such as high-performance computers.
This revelation has only added to the growing unease surrounding the project, which involves a network of 208 secret rooms.
A majority of these rooms are reportedly hidden from public view in planning documents, raising questions about their intended use and the transparency of the project.
The embassy is set to be constructed on the site of the Royal Mint, pending approval from Sir Keir Starmer, the leader of the Labour Party.
However, MPs from across the political spectrum have voiced strong opposition to the plan, citing significant security risks.
They argue that allowing China to establish a diplomatic presence on such a sensitive site could compromise the UK’s national security.
The timing of the proposal has also drawn scrutiny, as Downing Street is said to have suggested that the Prime Minister approve the plans before embarking on a planned visit to China later this month.

This move is viewed by critics as an attempt to mend diplomatic ties with President Xi Jinping, despite ongoing concerns about the project’s implications.
Central to the controversy are fears that the new embassy could serve as a hub for espionage.
Critics have raised alarms that China might exploit the proximity of the site to critical infrastructure, including underground communication cables.
Documents obtained by The Mail on Sunday reveal that the outer wall of a chamber directly adjacent to these cables would be demolished and rebuilt, a process that has fueled speculation that China could tap into the lines to eavesdrop on sensitive information.
Security expert Professor Alan Woodward has described this as a 'red flag,' emphasizing that the close proximity of the cables to the building would be an 'enormous temptation' for China to engage in surveillance activities.
The planning documents also include references to 'spy dungeons'—two suites of basement rooms and a tunnel, with their purpose redacted for security reasons.

These revelations have further amplified concerns that the embassy might double as a covert intelligence operation.
Diplomatic sources have confirmed that the proposed 'spy campus' would provide on-site accommodation for over 200 intelligence officers, suggesting a level of operational capacity that has alarmed security analysts and lawmakers alike.
The site’s strategic location near the City of London, a global financial hub, has only heightened these fears, as the cables along Mansell Street carry communications for major firms such as BT, Colt Technologies, and Verizon.
The debate over the embassy has been ongoing since 2018, when China purchased the 215,280 sq ft site for £255 million from the Crown Estate.
From the outset, security concerns were raised due to the land’s proximity to sensitive underground communications in the Square Mile.
The cables in question run between financial institutions in the City of London and Canary Wharf, as well as near three major data centers, including the Stock Exchange.
This has led to fears that the embassy could be used not only for espionage but also as a base to track individuals who have fled China’s influence, such as those who have sought refuge from Hong Kong’s regime.
China has dismissed allegations that the embassy could function as an espionage hub, while BT has stated that it has 'robust security measures in place' to protect its assets.
However, these assurances have done little to quell the concerns of critics, including Shadow Justice Secretary Robert Jenrick, who called the unredacted plans 'shocking' and accused the Labour leadership of prioritizing diplomatic relations over national security.
As the debate continues, the proposed embassy remains a focal point of contention, with its potential impact on the UK’s security and sovereignty hanging in the balance.